Küchenplanung vom Planungsbüro

Zugriffe heute: 5 - gesamt: 4188.

DIE KÜCHE - IMMER MEHR DER LEBENSMITTELPUNKT

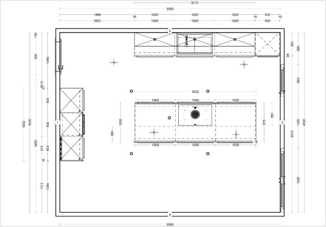
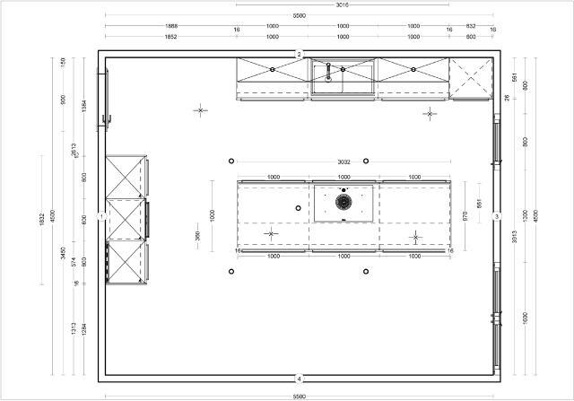
Die Küche ist bei vielen Menschen der Wohnlebensmittelpunkt. Dort wird gekocht, kreativ gedacht und ist bei Partys der Haupttreffpunkt.
Es wird gelacht, geweint, gestritten, versöhnt und auch genossen. Hier werden Hausaufgaben gemacht, kleine und große Pläne geschmiedet und manch ein heutiger Industriegigant hat seine Grundidee beim Abwaschen gefunden.

Daher will eine Küche ordentlich geplant sein, denn wer weiss schon was sich bei Ihnen in der Küche als nächstes entwickelt!

UNSERE FACHPLANER PLANEN IHRE KÜCHE

Sie wünschen sich für Ihre neue Küche eine unabhängige, neutrale und professionelle Beratung ohne Kaufdruck?
Dann ist unser Team genau der Partner, den Sie suchen und jetzt gefunden haben!



Sie beauftragen uns, wenn Sie professionelle planerische Gestaltungen und Lösungen für Ihr Projekt brauchen, ohne sich jetzt und sofort auf ein bestimmtes Design oder auf Arbeitsoberflächen festlegen zu müssen.

Wir verstehen uns als Ihr Küchenplaner und kümmern uns um die technischen und planerischen Abläufe, die in der Projektsteuerung im Hintergrund beachtet und koordiniert werden müssen.

Wir planen für Sie und mit Ihnen. Im Raum Berlin beschaffen wir auch Muster oder begleiten Sie in ein Küchenstudio Ihrer Wahl, damit Ihr Traum zu dem Zeitpunkt wahr wird, wie Sie es sich als Ziel gesetzt haben.

  • Wir planen für Sie

    Das brauchen wir von Ihnen

  • Wir begleiten Sie

    zur Küchenplanung im Studio Ihrer Wahl

  • Preise

    Übersicht