Preise

Zugriffe heute: 4 - gesamt: 4210.

Wir arbeiten zu 100% unabhänging nur für Sie und für Ihre eigenen Interessen. Lassen Sie sich Ihr individuelles Angebot erstellen.

IDEENPLANUNG:

Ausfertigung von 2 verschiedenen Planungen nach Kundenwunsch und Angaben.
Ausgabe in 3D Ansichten

Basispreis 149,00 € inkl. MwSt.

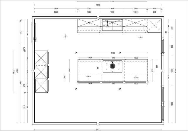
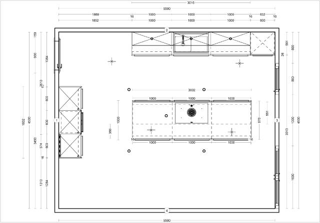
INSTALLATIONSPLAN:

Ausfertigung von vermaßten Grundrisszeichnungen, Wandansichten sowie Installationsplänen und 3D Ansichten.

Basispreis 449,00 € inkl. MwSt.

STUNDENBASIS

Ausführliches Beratungsgespräch bei Ihnen Zuhause oder Begleitservice in verschiedene Küchenstudios im Raum Berlin.

Basispreis 59,95 € inkl. MwSt. je Stunde

(Dazu gehören auch Anfahrtswege und Parkplatzsuche)

PROJEKTPLANUNG

Für größere Projekte wie Mehrfamilienhäuser sollte schon vor Baubeginn bekannt sein, wie die Installationen in den Küchen zu verlegen sind und wie die Küche schon mal im groben aussehen soll.


Die Verhandlungen über den evtl. Küchenkauf kann dann auch erst weit nach Baubeginn erfolgen und ist aufgrund der dann vorhanden Grundzeichnungen für das jeweilige Küchenstdudio erheblich einfacher und das senkt massiv den Preis.

Unser Fachplanerteam ist da genau das richtige an Ihrer Seite.

Ausfertigung von verschiedenen vermaßten Grundrisszeichnungen, Wandansichten sowie Installationsplänen und 3D Ansichten.

Je nach Auftragsgröße ist der Preis Verhandlungsbasis.

So einfach nehmen Sie Kontakt zu uns auf:

...mehr